目 录
1 编制说明 ...1
1.1 编制目的 ...1
1.2 编制依据 ... 1
2 工程概况 ... 1
2.1 工程概况 .. 1
2.2 高层区内支撑工程概况 ... 2
2.3 换撑设计 ... 3
2.4 其他事项 ... 10
3 施工部署 .... 10
3.1 环形支撑分区布置 ... 10
3.2 拆除对象结构及工程量 ... 11
4 施工准备 ... 12
4.1 技术准备 ... 12
4.2 施工准备 ... 12
4.3 劳动力、机械准备和物资准备 ... 12
5 施工方法 ... 15
5.1 施工流程 ... 15
5.2 各工序施工要点 ... 16
5.3 架体搭设 ... 21
6 安全文明施工措施 ... 23
6.1 安全施工措施 .. 23
6.2 确保文明施工的措施 ... 25
7 确保换撑质量的施工措施 ... 25
7.1 确保施工质量的措施 ... 25
7.2 成品保护 ... 26
8 基坑监测 ... 28
8.1 沉降观测 ... 29
8.2 深层土体水平位移监测 ... 29
9 应急预案 ... 29
9.1 成立应急处理领导小组 ..... 29
9.2 应急处理领导小组的职责 ... 30
9.3 应急处理预案 ..... 30
9.4 应急处理措施 ... 30
10 相关计算书 .... 31
10.1 力学模型 .... 31
10.2 荷载分析 .... 31
10.3 支撑梁承受荷载计算 .... 32
10.4 环梁最大容许值计算 ... 33
10.5 格构柱计算 ... 35
10.6 结果分析 ... 37
(此处已添加圈子卡片最新废旧安全网破碎机那家好,请到今日头条客户端查看)一、编制说明
1 编制目的
本方案为天津市**综合配套居住区项目工程高层区环形支撑拆除及换撑施工方案,旨在保证基坑安全及地库施工工期和质量要求。
2 编制依据
二、工程概况
1 工程概况
项目位于天津市**,是天津新技术产业园区的重要组成部分。工程占地面积 104351.8m2,共规划高层住宅建筑面积约155028m2。
2,结构形式为现浇钢筋混凝土框架—剪力墙结构,地下两层,总建筑面积为 200742m2。其中,地上总建筑面积约126080m2,地下建筑面积约 74662m2。8栋高层住宅,其中高层住宅 T2至 T4为超高层建筑;17栋涉外专家公寓,建筑层数为 3层,建筑高度 13m;1栋公共建筑,建筑高度不超过 24m;2层地下室,深度约 12m。
2 高层区内支撑工程概况
本工程高层区深基坑采用支护桩+环形内支撑的支护形式,支护体系由支护桩、格构柱、冠梁、水平支撑梁、腰梁组成。环形支撑北侧采用Φ800@1000 灌注桩支护;
环形支撑东、西两侧采用放坡+Φ800@1000灌注桩支护;环形支撑南侧采用Φ700@900灌注桩支护。灌注桩主筋为 C28,主筋的保护层厚度为 50mm,混凝土设计等级为 C30(水下混凝土提高一级)。上部放坡采用 50mm厚 C20细石混凝土,内配 A6.5@250钢筋网和 A12@1000长 700钢筋钉入土坡内。环形支撑梁的中心标高为-4.950m,混凝土等级为 C30,混凝土支撑及腰梁钢筋保护层厚度为 30mm。内支撑结构截面尺寸详见下表最新废旧安全网破碎机那家好:
3 换撑设计
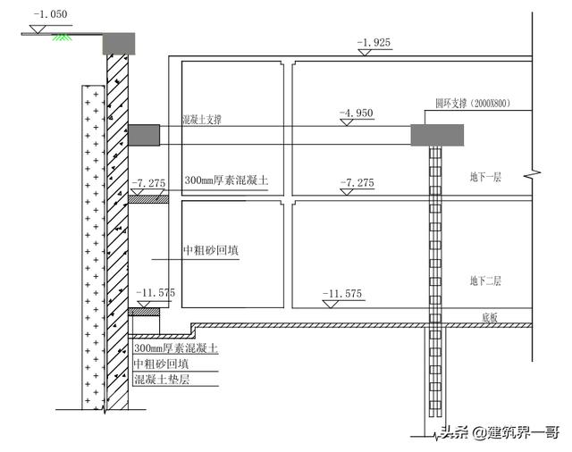
1) 外墙和支护桩之间的混凝土换撑
深坑区地下室外墙和支护桩之间的撑换撑板带采用采用中粗砂+300厚素混凝土换撑(混凝土强度等级同梁板),上下布置两道,第一道换撑板带素混凝土顶标高同深坑区混凝土底板顶标高-11.575m(现已施工完毕),第二道换撑板带素混凝土顶标高为同地下车库二层顶板顶标高-7.275m。具体换撑见下剖面图:
2) 地下车库内部换撑概况
深基坑北侧地下车库车道区域和降板区(标高-9.025)没有传力点进行传力,采用Φ609×12的钢管进行结构临时支撑,钢管的顶标高为-7.275,钢管换撑的位置具体见下图:
深基坑南侧 10-4~10-5 轴/10-M~10-P 轴,板标高为-9.025,根据设计要求,由于此降板区南北跨度较小,可不进行钢管换撑。
3) 后浇带换撑概况
本工程分沉降后浇带和温度后浇带,温度后浇带和沉降后浇带宽度均为 800mm。根据图纸总说明要求,温度后浇带在两侧混凝土浇注完毕,并间隔 60 天后再浇注;
沉降后浇带须在主楼封顶、两侧结构沉降稳定后浇筑。为了使地下二层混凝土顶板支撑两侧的支护桩,在混凝土内支撑拆除前,后浇带位置进行型钢换撑,型钢采用预埋工字型钢,型钢为128a,布置在后浇带截断主梁和次梁的位置。
4) 换撑要求
1、钢管支撑固定措施
深坑区地下室二层结构钢筋绑扎时,要进行钢管换撑埋件 M1 的定位和预埋。由于换撑钢管长度较长,根据插表 2-2 中钢管支撑重量,并考虑现场 2 号、3 号塔吊型号,钢管 HC-1~HC-6 可整根通过塔吊进行运输,HC-7~HC-11 需截成两段进行塔吊运输。钢管支撑与预埋件焊接时下边搭设钢管支撑架进行钢管支撑,立杆间距为 1.2m,具体布置见下图:
2、后浇带型钢支撑
根据设计要求后浇带位置钢筋不容许断开,所以地下二层梁板钢筋绑扎时,需将型钢预埋到梁中线位置。采用 C18钢筋将型钢与梁底纵筋进行焊接,固定型钢。
4 其他事项
①支护桩和结构外墙当中设置换撑板带,换撑板带厚度为 300,混凝土强度设计等级同结构梁板。
②临时换撑 HC 采用 609(12)钢管,钢材采用 Q235B 级钢,焊条采用 E43 型。临时换撑 HC 均通过 M1 与结构柱、梁或墙连接。
③换撑板带上严禁任何形式的堆载,仅承受水平力。
④拆撑工况:待地下室顶层结构梁板及车道板浇筑结束并均达到设计强度,地下室周边密实回填,方可拆 HC。
三、 施工部署
1 环形支撑分区布置
由于混凝土内支撑拆除工作为本工程地下室结构施工的关键路线,直接影响深坑区地下一层结构施工。应业主要求,首先完成深坑区塔楼部分的地下室封顶,现分两个阶段对内支撑进行破除,第一阶段先将塔楼楼座上部的内支撑进行拆除,第二阶段再对车库区域进行内支撑进行拆除。
2 拆除对象结构及工程量
机械拆除体结构为钢筋混凝土。本工程需拆除的钢筋混凝土支撑系统,基坑支护采用钻孔灌注桩围护,环梁支撑的支护方案。拆除方量约为 2800m³。
四、 施工准备
1 技术准备
及时编制通过审核的施工方案,在正式施工前进行三级技术交底,即技术负责人→管理人员→施工班组长→操作工人,交底内容及要求包括工程概况、进度质量目标、施工部署、技术操作要领及注意事项、施工安全、成品保护等。
2 施工准备
(1)内支撑梁破碎拆除待地下二层结构施工完毕,并且地下二层底板及墙柱混凝土强度达到设计值 80%以上;换撑板带的区域的外墙防水及保护层施工完毕;换撑板带施工完毕,并且混凝土强度达到设计值的 80%以上。
(2)支撑梁上所有材料清理完毕,支撑梁上防护栏杆拆除清理归堆。
(3)地下二层顶板后浇带、墙柱插筋、预留洞口等做好防护措施,成品保护措施。
(4)支撑拆除区域拉设警戒线封闭,根据不同区域操作平台的划分,用警戒线将机械操作区域分开,并挂设警示牌,派专人看守,严禁非施工人员进入场地。
(5)支撑拆除区域停止一切其它施工,防止混凝土碎块溅射伤人。
3 劳动力、机械准备和物资准备
由于换撑及内支撑拆除工作位于本工程施工网路计划的关键路线,直接影响到后续施工,故对投入劳动力要做到合理利用,加班加点,抢赶工期。
为保证工期要求,内支撑拆除分两阶段完成,第一阶段以拆除楼座部分为主,第二阶段拆除车库部位。
劳动力、机械准备和物资计划表
五、 施工方法
1 施工流程
1.1 内支撑拆除的施工顺序
根据本工程基坑支护内支撑特点和业主的工期要求,采用以机械拆除为主,人工拆除为辅的施工方法进行施工。
地下二层底板上铺设木跳板和密目网(需搭设脚手架的部位搭设脚手架,墙柱插筋做好成品保护)→支撑梁上铺设好道板→用汽车吊把液压破碎锤吊到道板上→支撑梁的砼凿除、钢筋割除工作→转运割除钢筋→转运砼碎片至运输车→割除格构柱内支撑拆除的第一阶段采用 2 台液压锤破碎拆除施工,首先 2 台液压锤分别从基坑南侧行走至 T2 和 T3 塔楼楼座上部需要拆除支撑的位置,并将道板吊推至支撑梁平面,然后将液压锤下落开至工字钢道板上,并开推至需要拆除的路线的起点,破除内撑时两台液压锤面北、背南,采用倒退法破除内支撑,先拆次梁,后拆主梁。T3塔楼楼座上部支撑拆除完毕后,该部位的液压锤退至东侧将东北角 T4 塔楼楼座上部,采用同样的方法进行破碎拆除。西北角 T1 塔楼楼座上部的内支撑,不能机械破碎拆除的部位,采用人工破碎拆除施工。
第二阶段采用 6 台液压锤同时进行地下车库区域的混凝土内支撑的破碎拆除施工。首先将 6 台液压锤平台道板铺设到位,6 台液压锤开至支撑道板上,开至拆除起点,采用倒退法边拆、边退,机械行走及拆除时履带坐落及破碎的冲击力应平衡,锤头不得闪失,对结构及成品冲击的破坏,同时边拆、边切割钢筋,先拆次梁,后拆主梁。断开直梁的跨度较大的位置处,梁下采用脚手架进行支撑。
2 各工序施工要点
2.1 混凝土支撑破除及钢筋切割
支撑梁混凝土主要采用液压锤机械破除,每跨支撑梁从跨中向两端逐步破除,所有底筋在混凝土破除完毕后最后割除。破除时先从支撑表面向里破除 100mm,将破出的箍筋从腰部切割剥离,再继续破除内部混凝土并切割纵筋(底筋除外)。混凝土碎块不宜大于过大,否则需进行二次破除。
2.2 支护桩和格构柱割除
混凝土支撑梁拆除完成后,对环形支撑格构柱进行人工割除。地下二层顶板上钢格构柱割除前,先搭设格构柱割除操作平台。地下二层的钢格构柱随地下二层满堂架支撑体系拆除时一起割除。割除格构柱首先破除表面的混凝土,然后割断型钢,格构柱按每层 1m 分层切割,最后沿板面割断,分段割除进行转运。
深浅坑交界处的临时隔断桩在内支撑梁破除后,浅坑区预留道路土方开挖后对隔断桩进行割断处理,临时隔断桩割断至浅坑区底板下 300mm,顶标高为-8.735。
2.3 混凝土碎块清理外运
内支撑梁破碎拆除时,拆除区域 10m 内禁止站人,待局部支撑破除完成后,清理混凝土碎块人员方允许进入拆撑区域施工。为满足环境保护要求,直径大于 300mm的混凝土块需进行人工二次粉碎。在第一阶段的环形支撑拆除,在基坑南侧设置 2个出砼口,第二阶段的环形支撑拆除,在基坑南侧设置 5 个出砼口。混凝土碎块利用小型正铲装载机和现场布置的塔吊装运至自卸运输车。塔楼楼座部位的混凝土碎块要及时转运,不得堆载。混凝土碎块运至距场地指定堆场堆卸,因建筑垃圾危害大,混凝土碎块运至堆场时需用彩条布覆盖并需缴纳环境污染费。
2.4 支撑梁破除方法
环形支撑梁破碎拆除以机械破除为主,人工破除为辅。
支撑梁破除前需确定主次支撑,破除其上有次支撑的主支撑前,必须首先将次支撑破除后方可进行主支撑破除施工。
机械破除以支托桩上的格构柱将环梁分成多个拆除单元,拆除时按拆除单元进行,在每个单元中,先拆除加强板,再拆除支撑连系梁,最后拆除环梁。在进行单元拆除时,破碎机的中心不要置于本拆除单元(两根格构柱和格构柱之间的主梁组成一个单元)。
人工拆除拆除内支撑,先拆除联系支撑梁,最后拆除环梁和对撑。施工人员首先站在支撑梁上破碎支撑梁上半混凝土,依次向后退,将梁剔成斜坡型,然后人再站在操作平台上,剔除下半部混凝土块,从中间往两端剔除混凝土。
1)由于腰梁下没有格构柱进行支撑,所以进行腰梁破除施工时,首先在腰梁下架设圆木进行支撑,为保证圆木的整体稳定性,圆木采用钢管进行拉结(详图见下图),该体系用于承受腰梁的自重及上部活荷载。破除腰梁时,首先割断局部的吊筋,该区域不超过 5 米,然后进行该区域腰梁的混凝土的破碎拆除,减少腰梁破除时对支护桩的扰动影响。确保腰梁破除时腰梁不整体坠落。
2)进行次支撑梁破除时,实行从梁两端对称凿除方式进行支撑梁凿除,先凿除梁面及两侧钢筋保护层,保护层混凝土凿除完毕之后将箍筋割断,箍筋割断之后再将梁上部钢筋取出,上部钢筋取出后依次从梁两端 1/3 跨处向中分层破除梁芯混凝土并分层取出梁侧钢筋,梁跨中 1/3 范围混凝土破除完毕之后,再破除次支撑梁两端混凝土,所有混凝土破除完毕后方可割断低筋。
3)进行主支撑梁凿除施工时,首先在主梁下间距不大于 3m 布置直径 200mm的圆木进行混凝土支撑梁保护,防止内支撑混凝土整体下落(具体的布置见下详图)。
主梁的破除实行从梁两端对称凿除方式进行支撑梁凿除,先凿除梁面及两侧钢筋保护层,保护层混凝土凿除完毕之后将箍筋割断,箍筋割断之后再将梁上部钢筋取出,上部钢筋取出后依次从梁两端 1/3 跨处向中分层破除梁芯混凝土并分层取出梁侧钢筋,梁跨中 1/3 范围混凝土破除完毕之后,及时进行相邻跨跨中混凝土破除施工。待相邻两跨跨中混凝土破除完毕之后,再对称破除立柱桩节点处混凝土。
3 架体搭设
对于不能进行机械拆除的部分,采用人工拆除。人工破除采用空压机,为保证操作工人的安全,在支撑梁下搭设防护架。防护架也可以起到保护插筋和地下二层顶板的作用,防护架上的混凝土碎块及时转运,脚手架上堆载高度不超过 200mm。
3.1 架体搭设要求
1、脚手平台采用Φ48×3.0 钢管搭设。
2、脚手架拆除按自上而下先装者后拆,后装者先拆逐步拆除,一步一清,不得采用踏步式拆法,不准上下同时作业。
3、拆除时要统一指挥,上下呼应,动作协调,当解除与另一人有关的扣件时候,应先通知对方,防止坠落。
4、拆下的杆件与配件,应按类分堆,可采用人工搬运或吊车吊送,严禁高空抛掷,运至地面后,应随时按照品种、分规格堆放整齐,妥善保管。
5、在离地 200mm 处应设置扫地杆。
6、其它有关构造方面的规范,参照《建筑施工扣件式钢管脚手架安全技术规范》
3.2 支撑破除脚手平台搭设
1、脚手平台搭设顺序:铺设木跳板→摆放扫地杆→树立立杆→搭设横杆→搭设防护栏杆→铺设脚手板→张挂密目安全网。
2、在破除基坑内支撑前,支撑梁及两侧 1.5m 区域内需搭设临时钢管满堂架,钢管立杆间距为 1000mm,横杆 间距不得大于 1.5m,横杆 上铺设木跳板,以便工人操作,确保施工安全。
3、脚手平台拆除顺序为:安全网→脚手板→防护栏杆→横杆→立杆→扫地杆→收集木跳板。
六、 安全文明施工措施
1 安全施工措施
1.1 确保换撑安全的施工措施
1、所有现场施工人员必须正确佩戴安全帽;
2、所搭设的脚手架必须符合规范要求;
3、空压机操作工、电焊工严禁带病作业;
4、电焊工进行焊接作业时,必须穿防滑鞋、戴专用手套及防护面罩;
5、钢管换撑焊接及支护桩保护层剥离时,电焊工及空压机操作工
1.2 确保拆撑安全的施工措施
1、架子工等各类机械操作工人、特殊工种人员必须持证上岗,脚手架安装时,
应两人配合搭设;严格按操作规程作业,各类机械操作人员严禁酒后作业和带病作业;
2、搭设脚手架所采用的Φ48 钢管和扣件材料,其材质应符合规范要求,并需经过现场材料管理员验收合格后,方可使用;
3、脚手架上的砼渣应及时清理,堆载不得超过 20cm;
4、为确保机械用电荷载分布均衡,做好对电气大熔集负荷防火的预防措施;
5、专职电工值班制度,操作过程中派专人巡视;
6、进场施工机械必须要进行验收,机械使用期间由专门负责人进行维修保养;
7、专业分包队伍中派两名负责人与项目体机管员共同管理设备;
8、搭拆脚手架时候,施工现场必须有专人指挥,拉设警戒线,禁止非作业人员进入作业区;
9、支撑凿除作业时要有专人负责指挥,并设立警戒线,确保施工安全进行;在凿除过程中,严禁站在已经割断梁主筋的支撑梁上进行凿除;
10、支撑凿除施工人员必须佩戴安全带,戴好安全帽,戴好口罩;
11、施工时候,必须严格控制脚手架上的施工荷载;
12、遇恶劣天气影响施工安全时,不得进行脚手架施工;
13、拆下的碎石用塔吊吊离,严禁采用人工向上传递;
14、在拆除部位进行电、气焊作业时,必须进行动火审批,应有防火措施和专人看守,并按要求设置灭火器(每 200m2 一组);
15、现场乙炔及氧气应放在支撑外稳定可靠处,防止落物;
16、支撑梁凿除完成后,要做到工完场清,特别要注意钢筋头的处理,防止伤人。
17、在破除内支撑梁体系期间严禁环梁及冠梁下工人作业;且工人在内支撑梁及环梁上钻孔时必须严格佩戴安全帽及系好安全带,做好防护措施;
18、现场用电设备做好防雨工作,用电采用三相五线制,两级漏电保护装置;
19、在操作之前必须检查操作环境是否符合安全要求,道路是否顺畅,机具是否完好牢固,安全设施和防护用品是否齐全,经检查符合后才可施工。
20、施工前组织全体人员认真学习有关安全制度及施工操作规程,配备专职安全检查员,随时对施工现场进行安全检查,发现问题及时解决处理。现场设安全员,树立警示牌,时刻提醒施工人员注意安全。
1.3 确保垃圾转运安全的施工措施
1、塔吊使用安全、吊斗内混凝土碎块不得撒出。
2、起重机械吊运破碎混凝土块时,严格按照指挥工信号进行作业。
3、现场如发现隐患立即下整改通知单,限期整改并予以复查。
4、现场人员及车辆应由专人指挥,各部门分工明确,互相协作,定期对施工人员进行安全教育。
5、未尽事宜按建筑施工安全检查标准及相关国家规范、规程及地方标准执行。
2 确保文明施工的措施
1、施工过程中,采用性能良好的施工机械,减少噪声对周边环境的影响,同时
采取洒水防尘措施。
2、对每一部离开工地的废渣清运车辆用高压水枪对其轮盘进行清理,严禁将渣
土带到周围公共道路上。
3、运输车辆堆砼废渣不得过高,防止车辆颠簸将砼废渣倾倒在马路上,造成不良影响。
4、定期打扫和喷洒工地道路及工地周边市政道路。
5、砼支撑拆除和废渣清运时应经常进行洒水,防止粉尘四处飞扬,减少对周围环境的影响。
6、施工前,组织文明施工知识培训,制定文明施工细则,使参与施工的职工遵纪守法,举止文明。
7、现场场地狭小,对生产生活设施、道路、管线、电力线路、临时停车场等进行布置和动态管理,加强施工机械、材料、设备的管理和使用,做到场地整齐有序,文明施工。
七、 确保换撑质量的施工措施
1 确保施工质量的措施
1、混凝土换撑板带施工时,必须将混凝土振捣密实,混凝土振捣采用插入式振捣器,振捣棒要求快插慢拔,保证振捣棒下插深度和混凝土有充分的时间振捣密实。振捣点的间距按照振捣棒作用半径的 1.5 倍一般以 400~500mm 进行控制。振捣时间控制具体以混凝土不再下沉并无气泡产生为准。振捣应随下料进度,均匀有序的进行,不可漏振,亦不可过振。
2、换撑板混凝土浇筑时,混凝土表面水分散失,接近初凝时会在表面形成不规则裂缝,应及时用人工压抹予以消除。处理之后,应防止水分继续蒸发使混凝土表面干缩,应及时进行蓄湿养护。
3、主要材料必须使用符合国家质量标准的材料,材料进场必须附有质量证明文件。
2 成品保护
内支撑梁混凝梁拆除时,混凝土碎块会对墙柱插筋造成很大损坏,所以在地下室外墙和 T2、T3 塔楼内支撑梁下的剪力墙和框架柱等插筋上搭设防护架,进行成品保护。
2.1 柱插筋保护措施
框架柱主筋一般规格直径较大,上部端头有滚压直螺纹丝牙供主筋接长。若被混凝土块砸弯,调直较困难且易折断,直接影响工程质量。若上部端头滚压直螺纹丝牙被混凝土块砸损,将给钢筋接长带来困难,亦影响工程质量。为此,在内支撑拆除前,钢筋直螺纹丝头用保护帽做好保护,柱插筋采用Ф48脚手钢管套在柱四角主筋外侧,用柱主筋外侧钢管作为立杆,搭成一个简易构架,构架上铺放木跳板,以抵抗混凝土碎块冲砸,让砼碎块下落至木板上,二次用人工清理渣土,脚手钢管外侧用木模板封闭,防止砼碎块调入插筋中。
2.2 剪力墙插筋保护措施
钢筋混凝土墙体插筋,规格直径较小,但数量多,若加套管保护,将花费大量钢管和人工且延长工期。构架上铺放木跳板,以抵抗混凝土碎块冲砸,让砼渣下落至木板上,二次用人工清理渣土。
2.3 混凝土板的成品保护
为保护混凝土楼板,混凝土楼板上铺设木跳板和密目网,为防止混凝土块外溅,在地下室二层顶满铺木跳板和密目网。防止下落的混凝土碎块破坏混凝土楼板,机械破碎拆除时,混凝土碎块的直径不大于 300mm。
2.4 后浇带和预留洞口成品保护
地下室二层顶板层所有后浇带及预留洞口面上用 1cm厚钢板封闭,防止混凝土渣块掉入后浇带内。
2.5 环形支撑四周成品保护
环形支撑四周剪力墙与围护之间的砼渣落入后不好清理,采用小方木、竹胶板做流槽、上端顶至支撑下侧、下端顶至底板上、用铁丝固定牢靠坡型流槽。所破碎的渣土直接落至钢板上,也保证混凝土不会对成品钢筋造成损坏。
八、 基坑监测
在内支撑混凝土拆除过程中应持续对基坑支护桩和周围土体环境进行监测,作好应急抢险准备。通过监测和现场观察,获得准确数据并及时分析处理,严密注视是否有险情及险情发生发展的情况。
1 沉降观测
每天对支撑梁进行沉降监测工作,当发现沉降较大时,须及时上报。支撑凿除期间,本项目部及监测单位需对基坑支撑梁进行沉降观测工作。
2 深层土体水平位移监测
在支撑凿除期间,需加强对基坑深层土体位移监测工作,必要时加密监测。当发现测斜管累计最大位移超过 35mm,位移发展速率连续 3天超过 3mm/天,需及时上报并采取相应措施。
九、 应急预案(略)
十、 相关计算书
破撑机械在混凝土支撑梁上进行破除时,破撑机械下铺设 4 道 12m×0.8m×0.18m 的钢道板,拆撑时承受破撑机械荷载的主要为环梁及径向梁。
机械液压锤在环梁上行走时,对环梁及径向梁和格构柱进行安全计算分析。
1 力学模型
按三跨连续梁桥为模型,计算液压锤在混凝土支撑梁上行走时支撑梁的受力情况。
2 荷载分析
环梁 HC-2 的最大跨度为 9m,地下二层顶板到环梁的高度为 1.925m。
恒载:支撑梁自重: 2.0×0.8×1.2×25KN/m3=48KN/m≈50 KN/m;
活载:机械 200KN:1.4×200÷(2×4×0.8)=43.75KN/m;
走道板 4 块:1.875KN/m×12m÷2×1.4=15.75KN/m。
所以环梁上的均布荷载(活载按满跨布置):Q=50+43.75+15.75=110 KN/m
该连续梁分两种受力情况计算该模型:第一种情况,破撑机械在边跨上行走;第二种情况:破撑机械在跨中行走。
第一种受力情况:
第二种受力情况:
3 支撑梁承受荷载计算
3.1 弯矩图
4 环梁最大容许值计算
4.1 环梁最大容许弯矩值
由于破碎液压锤主要在环形梁和径向梁等主梁上行走,所以只需验算主梁的受力是否满足环梁的截面设计。
支撑梁截面 2000mm×800mm,混凝土等级为 C30,钢筋保护层厚度为 30mm,环梁的截面配筋形式见下图:
其余计算过程略
凡本网注明“来源:砂石装备网”的所有作品,版权均属于砂石装备网,转载请注明。
凡注明为其它来源的信息,均转载自其它媒体,转载目的在于传递更多信息,并不代表本网赞同其观点及对其真实性负责。
如有新闻稿件和图片作品的内容、版权以及其它问题的,请联系我们。
当前,全球供应链深度重构,中国工程机械行业正站在机遇与挑战并存的关键节点。 全球来看,地缘政治与贸易摩擦为出海之路增添变数。与此同时,国内政策托底与设备更新周
2025-10-21 10:16:25
2025长沙国际工程机械展览会东南亚分展 2025 SOUTHEAST ASIA SUB-EXHIBITION OF CHANGSHA INTERNATIONAL CONSTRUCTION EQUIPMENT EXHIBITION 2025年9月3-5日(三天) 地点:马来西亚·吉隆坡实达城会展中心(SCCC...
2025-07-03 16:25:30
核心摘要:2025年5月18日,为期四天的第四届长沙国际工程机械展览会(以下简称“2025CICEE”)在长沙国际会展中心正式落下帷幕。本届展会 2025年5月18日,为期四天的第四届长沙国际工程机械展览会(以下简称“2025CICEE”)在长沙国际会展中心正式落下帷幕。本届展会以"高端化、智能化、...
2025-05-19 11:21:21
2025年5月15日上午9时40分,第四届长沙国际工程机械展览会在长沙国际会展中心隆重开幕。本届展会规模达30万平方米,全球1806家参展企业齐聚一堂,集中展示工程机械领域的最新技术与产品。1000余名全球行业领袖、院士专家、企业代表及国际采购商共同参会,见证这一国际工程机械领域的年度盛事。...
2025-05-16 08:31:29
日立建机参展的首台设备——ZX900LCH-6A矿山液压挖掘机。抵达长沙国际会展中心的卡特彼勒挖掘机。红网时刻新闻5月8日讯(记者 彭超)第四届长沙国际工程机械展将于5月15日开幕。还有一周的时间,国内外品牌相继进驻场馆布展。5月8日,日本日立建机、美国卡特彼勒两家全球工程机械50强企业的参展设备进驻长沙国际会展中心,...
2025-05-10 11:48:38
4月30日,湖南省政府新闻办举办新闻发布会,宣布第四届长沙国际工程机械展览会将于5月15日至18日启幕。当天,装载三一集团蓝色电动装载机的运输车辆驶入长沙国际会展中心,这也是第二家正式布展企业。据悉,三一集团将携旗下18个事业部和子公司、72件套设备(含58台主机)震撼登场,以10089平米的超大展位,全面展现三一的高...
2025-05-06 20:27:36
2025年4月30日,湖南省新闻办公室召开新闻发布会,宣布第四届长沙国际工程机械展览会定于5月15日至18日在长沙国际会展中心、长沙国际会议中心举办。长沙市人民政府副市长康镇麟出席发布会并介绍展会筹备情况:本届展览会以高端化、智能化、绿色化新一代工程机械、应急装备、矿山装备、农业机械为主题,预计吸引全球1650家参展企...
2025-05-06 20:27:07
5月,世界的目光将聚焦长沙。第四届长沙国际工程机械展将于5月15日至18日在长沙国际会展中心、长沙国际会议中心举行。4月29日,随着“全球工程机械制造商50强”中联重科的首批百吨设备进场,展会进入布展时间。上午9时30分,装载着中联重科工程机械零部件的平板车缓缓驶入长沙国际会展中心,荧光绿的漆面在阳光下格外显眼。这些设...
2025-04-30 09:19:07
当全球工程机械产业的聚光灯再次投向湘江之畔,2025CICEE《高端化、智能化、绿色化——新一代工程机械、应急装备、矿山装备、农业机械》电子会刊第二期正式发布。继首期会刊创下超192万次阅读的行业纪录后,本期会刊汇聚183家全球领军企业,以尖端技术产品和创新解决方案,续写“工程机械之都”的传奇篇章。01硬核生态:解码产...
2025-04-30 09:15:38
5月15日,2025长沙国际工程机械展览会(2025 CICEE)即将在长沙国际会展中心盛大开幕,届时,来自全球60多个国家和地区的超1600家参展商,将在30万平方米的展区内陈列超2万件展品,涵盖工程机械全领域前沿技术和产品。目前,众多展商已蓄势待发,期待在这个推动全球工程机械行业交流与合作的超级平台上一展风采。...
2025-04-17 08:31:38
主营:破碎机
主营:破碎机
主营:破碎机
主营:破碎机
主营:破碎机
主营:破碎机、制砂楼
主营:破碎机
主营:破碎机
主营:筛网、筛机配件
主营:振动电机
主营:破碎机
主营:制砂机、筛分设备